


东南侧鸟瞰
01.
项目背景
当高铁驶近南昌西站,一座挺拔而简约的现代建筑映入眼帘,它不仅是城市的新地标,更是一张企业面向未来的创新名片。这就是由浙江大学建筑设计研究院(UAD)倾力设计的海康威视南昌科技园。这座总面积约7.6万㎡的园区,坐落于红谷滩新区门户位置,集总部办公、研发创新、展示体验与配套服务于一体,已成为企业在江西省的战略支点与形象窗口。

东南侧透视

西北侧透视

南侧透视

东侧鸟瞰

南侧鸟瞰
02.
回应城市:一座门户地标的科技姿态
项目首先回应了其独特的场地基因。面对来自高铁站方向的主要人流,建筑以完整、自信的姿态坦然呈现。塔楼与裙房巧妙错动,形成南低北高的优雅轮廓,不仅最大化确保了内部办公空间的开阔视野与充沛采光,更以面向东南侧的开放界面与景观花园,向城市传递出友好、开放的姿态。

西南侧鸟瞰
立面设计是建筑的无声语言。主塔楼纵向的线条强化了形体的挺拔与稳重,与之咬合的裙房,则通过横向的肌理形成对话与对比。这一纵一横间,勾勒出理性、高效又不失动态的现代科技企业形象。

西南侧透视

东侧透视
03.
聚焦于人:激发创造力的活力场域
对于一家科技企业而言,人才是核心。设计团队深入洞察高效办公与人文关怀的需求,塔楼采用“薄板式”布局,将核心交通与公共服务置于中部,从而在两侧释放出完整、连续的超大尺度办公空间。这种布局让自然光与通风自由穿透,无论身处何处,都能享受明亮、健康的工作环境。

大空间办公

露台透视
面向景观的员工餐厅,通透明亮,更延伸出宽敞的户外露台。这里不仅是就餐之所,更是灵感碰撞、休闲交流的活力发生器,让工作与生活达成美妙的平衡。
04.
绿色匠心:藏于细节的智慧
为追求极致的节能环保与视觉通透,主楼幕墙采用了精密的锯齿形设计。通风开启扇被巧妙隐藏于侧面,使得主要观景面实现无遮挡的全景玻璃视野,将城市风光尽收眼底。

立面肌理

裙楼局部透视

主楼仰视
裙房的水平铝板飘板,既是精致的遮阳构件,也构成了建筑舒展的韵律。入口处醒目的悬挑雨棚与入口玻璃中庭,则共同塑造出极具辨识度与仪式感的抵达体验。

南侧局部透视

主入口透视一

入口大堂

电梯厅

东侧局部透视

北入口局部透视

主入口透视二
05.
结语
海康威视南昌科技园项目是一次从城市关系、企业精神到员工体验的全面思考与实践。设计团队以理性分析为基石,以绿色健康为内核,最终成功打造了一个既能驱动企业发展,又能赋能区域升级的标杆性总部园区。在这里,科技、人文与自然和谐共生,共同指向一个更高效、更健康、更具吸引力的未来工作场景。
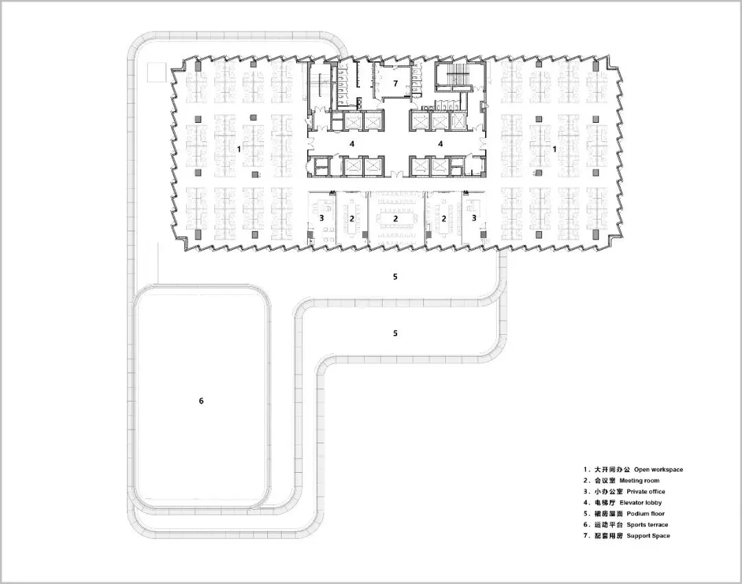
项目图纸

总平面图

裙房平面图

标准层平面图

南立面图

东立面图

剖面图

立面构造分析图

Revit model
项目信息:
设计单位:浙江大学建筑设计研究院
项目名称:海康威视南昌科技园
建设单位:南昌海康威视数字技术有限公司
项目地址:江西省南昌市
建筑面积:76244㎡
完成时间:2025年
摄影:章鱼见筑
设计团队:
工程负责人:杨易栋
设计总负责人:黄廷东
建筑设计:黄廷东、林哲涵、赵怡宬
结构设计:夏亮、张明山、洪涛、葛苍瑜
给排水设计:黄正杰、邓毅
暖通设计:李浩军、朱晟炜、吴剑平
电气设计:刘海峰、张坚伟、崔浩
弱电设计:陈佳、刘玥
幕墙设计:杭飞、王磊
室内设计:李丹、张恒、易圣雄
END 联系我们:sheji2415 投稿邮箱:youtharch@163.com