
@
/ 2026!建筑考研-南昌大学复试班(含快题)!点击即阅! /



2026
悦
加
南昌大学建筑学考研复试总分为250分
内容包括
快题笔试、专业综合面试、英语面试三大模块
其中快题笔试占100分;
专业综合面试占100分;
英语面试占50分。
复试总成绩合格者,将复试总成绩和初试成绩按
权重计算后相加,得出考生入学考试总成绩。
( 初 试 分 数 / 初 试 总 分 值 )*60+( 复 试 总 分 /250)*40
1、快题笔试(100分)
答题时间:2.5小时
考查形式:
专业课笔试内容会以快题的形式考察,通常考察面积为800-1000平的建筑,用A2或者A3大小的图纸进行绘制(一般情况下学校会提供图纸)。
2、专业综合测试(100分)
答题时间:15-20min
考查形式:
综合测试其内容包括自我介绍、作品集介绍,时间为15分钟。该环节首先由学生进行自我介绍与作品集展示;
之后将会随机抽取三个专业问题进行作答,考察内容分别考察范围包括建筑历史与理论、建筑理论及规范、建筑历史与理论、建筑理论及规范等等。
最后老师会根据作品集中所涉及的内容或预先设定的内容提出问题并与学生进行简短的沟通;
3、语言测试(50分)
答题时间:在专业面试的前后一天,每人时间为5min(由外语学院负责)
考查形式:
语言测试即英语听力与英语口语测试。5分钟内需要学生先进行简短的英文自我介绍。
介绍完后会让学生抽取一个主题或问题进行阐述。之后老师将根据学生自我介绍或预先设定的题目以英文的形式进行提问。
接下来学生根据问题以英文的形式进行回答,问题一般为2-3个。

2026
悦
加
1
课程一:
南昌大学复试流程及复试复习整体解析
2
课程二:
南昌大学复试快题课
3
课程三:
现场面试模拟+模拟考试

课程具体安排
1.
南昌大学复试流程及复习整体解析
上课时间:2026.03.02
课堂内容:
1、南昌大学复试的考试流程和科目
2、往年录取分数及录取情况参考
3、复试应如何复习
2.
南昌大学复试快题课
上课时间:
2026.3.1~3.20日内(待定)10天集训
课堂内容:
1、复试考察快题类型
2、复试考察快题要求
3、快题模拟训练、集体评图
A、练前课:快速设计课程:3月3日(待定)
B、5套任务书集中训练
(1)不规则地形专题训练
(2)景观应对专题训练
(3)高差地形应对专题训练
(4)特殊建筑类型专题训练
(5)加改建建筑类型专题训练
C、1V1单独评图改图。
D、考前模拟测试。
3
现场面试模拟+模拟考试
上课时间:复试前两天
课堂内容:
1、现场面试模拟
2、现场专业课考试模拟
3、意见指导






平面设计思维

造型设计思维



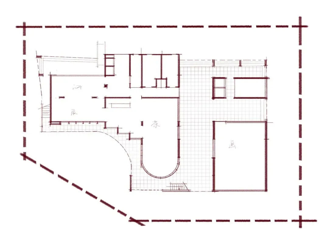
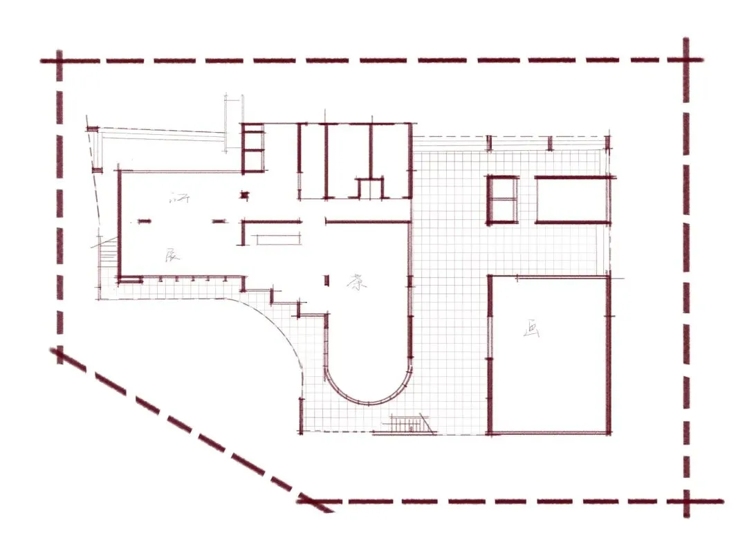
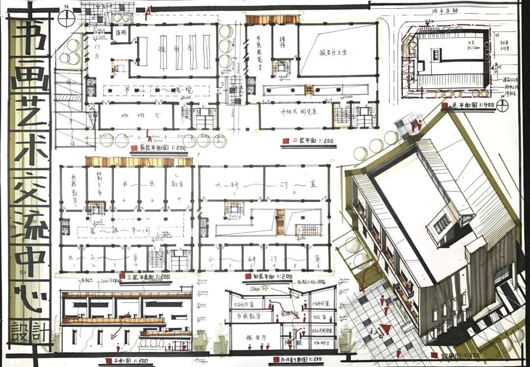
01 书画艺术交流中心


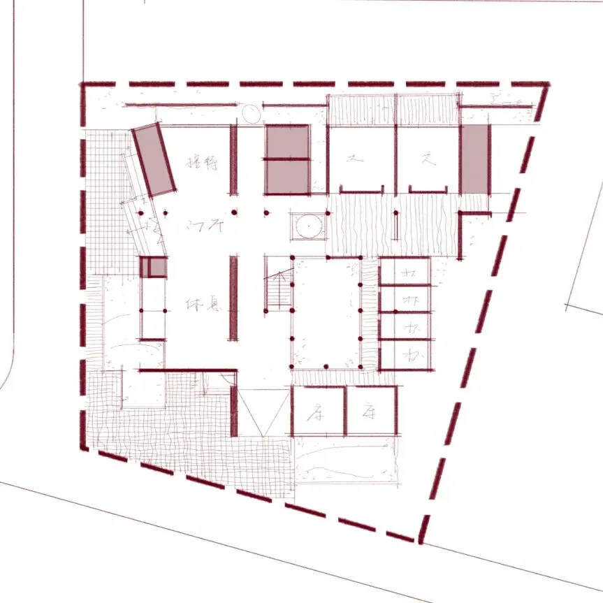
02 社区服务中心设计


03 游客服务中心设计


04 艺术家工作室设计


05 老年人餐饮服务中心


06 幼儿教育中心设计








































































点击下方详细了解悦加25级考研成绩👇















三小时建筑快题解题分析第一期 ↓ ↓ ↓

三小时建筑快题解题分析第二期 ↓ ↓ ↓

三小时建筑快题解题分析第三期 ↓ ↓ ↓

三小时建筑快题解题分析第四期 ↓ ↓ ↓

三小时建筑快题解题分析第五期 ↓ ↓ ↓

三小时建筑快题解题分析第六期 ↓ ↓ ↓

三小时建筑快题解题分析第七期 ↓ ↓ ↓

三小时建筑快题解题分析第八期 ↓ ↓ ↓

三小时建筑快题解题分析第九期 ↓ ↓ ↓

三小时建筑快题解题分析第十期 ↓ ↓ ↓

三小时建筑快题解题分析第十一期 ↓ ↓ ↓

点击下方详细了解建筑快题6H改3/4H👇

24级建筑考研必看——悦加23级全程班学员的华丽蜕变第四弹
24级建筑考研必看——悦加23级全程班学员的华丽蜕变第三弹
24级建筑考研必看——悦加23级全程班学员的华丽蜕变第二弹
24级建筑考研必看——悦加23级全程班学员的华丽蜕变第一弹