南昌|桃花源筑|三层别墅案例分享
这是一套三层户型别墅,三层总面积在327m²,单层面积在109m²左右。有南北院两个院子。
意式极简设计的首要准则是对形式的极致简化。它摒弃一切非必要的装饰,无论是家具的雕花、墙面的线脚,还是产品表面的复杂纹理,都被压缩到最低限度。但这种 "减法" 并非简单的删除,而是建立在对功能与结构的深刻理解之上。

项目介绍
项目名称|南昌|桃花源筑|三层别墅
主案设计|雷志强设计
项目坐标|中国江西南昌
别墅类型|别墅家装
主要材料|岩板 石材 涂装板 艺术涂料 实木
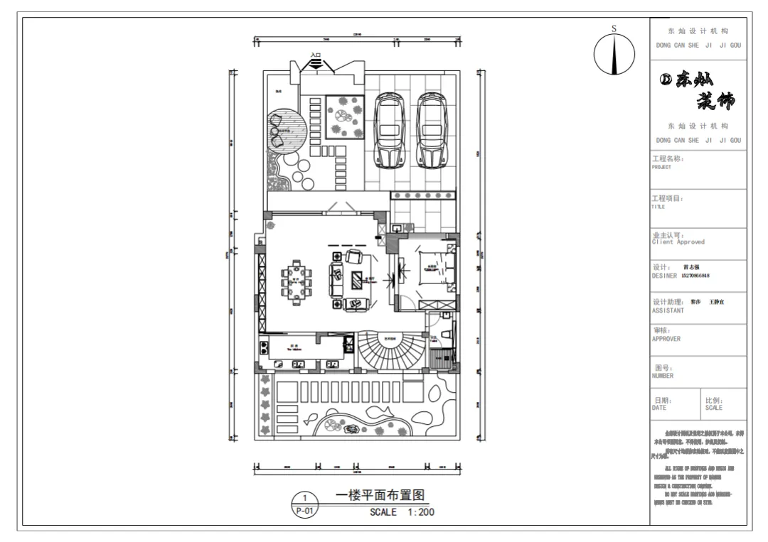
一楼平面图

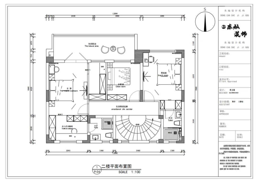
二楼平面图

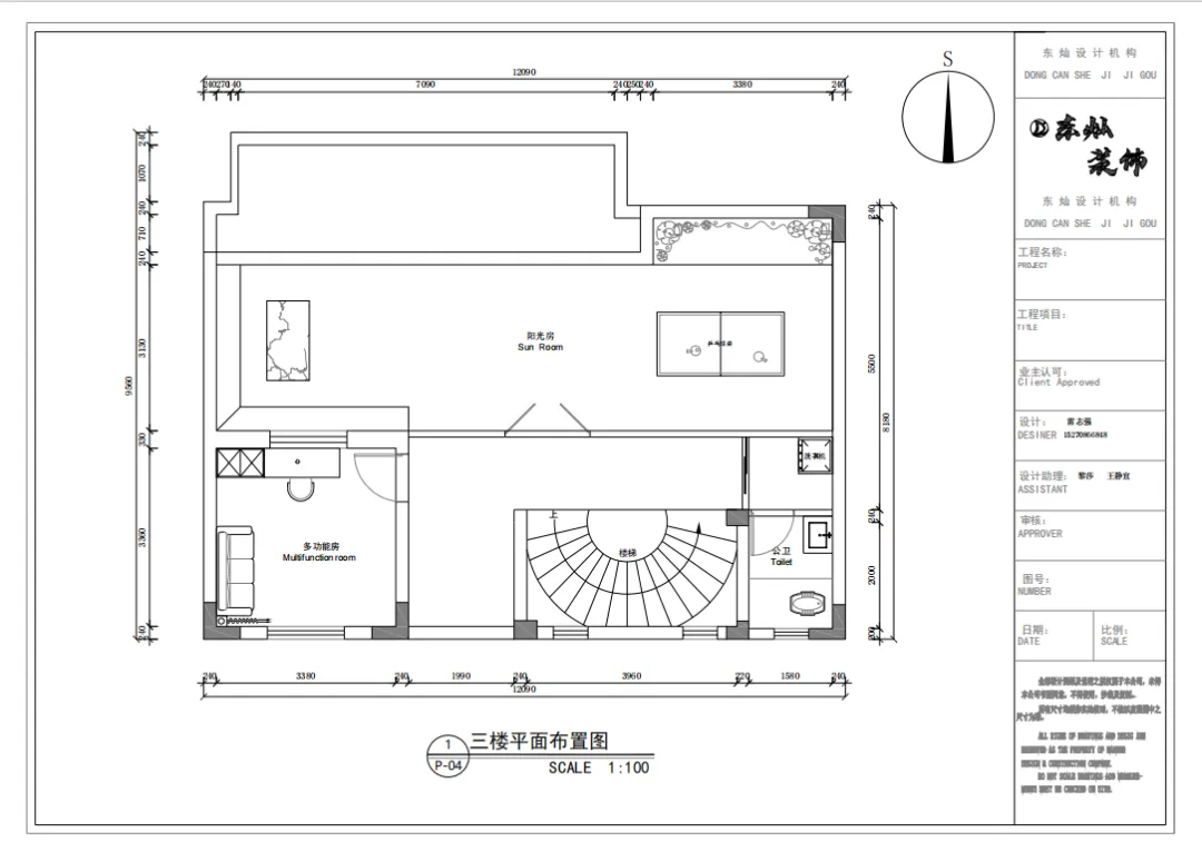
三楼平面图


天氟地水

“天氟”部分:指室内机采用氟系统(类似传统中央空调的氟循环),通过铜管输送制冷剂(氟利昂),连接壁挂式或风管式室内机,负责夏季制冷。
“地水”部分:地暖系统采用水系统,通过主机加热水,再由水管将热水输送到地面盘管,实现冬季供暖。


光伏






半导体界面的光生伏特效应,当太阳光照在半导体光电二极管上时,光子转化为电子,形成电压,连通后形成电流回路,从而将光能直接转换为电能。

意式极简设计,是一场关于克制与自由、简单与丰富的美学实验。它以看似简单的形式,承载着意大利人对生活的热爱、对艺术的执着和对品质的追求。在这个信息爆炸、物质过剩的时代。
意式极简为我们指明了一条回归本质的道路 —— 让设计褪去浮华,让生活回归本真,在极简的表象下,是对永恒之美的不懈追寻。当我们凝视一件意式极简的设计作品,感受到的不仅是视觉的愉悦,更是一种心灵的共鸣,那是一种跨越时空的美感,一种经得起岁月推敲的经典。

深色木质柜体搭配大理石背景墙,沉稳大气。餐边柜玻璃柜门内藏灯带,展示收藏品。大理石餐桌搭配简约座椅,适合用餐和家庭聚会。

采用大理石纹理墙面和地面,搭配木质橱柜,现代感十足。双窗设计保证采光,操作台面功能分区明确,集成电器节省空间,适合日常烹饪。

木质墙面搭配装饰画和镜子,富有艺术感。弧形楼梯设计独特,台阶灯带增加氛围感,是空间视觉焦点。




1
整体色调偏暖,以棕色、米色为主 。床头背景墙有独特设计,搭配简约吊灯和壁灯,营造温馨氛围。收纳空间与整体设计融合,兼具美观与实用性。
2
色调沉稳,以深木色和棕色为主。床头背景墙设计有层次感,灯光营造温馨静谧氛围。悬浮式床头柜节省空间,兼具设计感与实用性。

木质柜体搭配玻璃柜门,内置灯带方便挑选衣物。窗边梳妆区可用于整理妆容、搭配服饰,收纳布局合理,能分类存放衣物、包包等。


黑白大理石纹理对比强烈,设计时尚。双区域分离,洗漱区镜前灯实用,淋浴区设施齐全,满足日常洗漱与沐浴需求。


庭院等户外空间设计强调与自然的融合。利用绿植、景观石等自然元素,打造舒适惬意的休闲区域。
庭院小径与休闲区的设置,不仅为居住者提供了亲近自然、放松身心的场所,还使室内外空间相互呼应,拓展了居住的生活场景与体验维度。
东灿高端设计机构
东灿装饰设计有限公司是一支专业从事室内软装设计的团队。精致创新的设计理念,高品质的完善设计,填补江西市场软装行业的空白。
服务范围涵盖:售楼处、样板房、私人会所、高端私宅、酒店、商业空间等软装设计与实施。
我们凭着对空间的贴切理解和生活品位的不懈追求、整合丰富的产品资源,以全新的理念,对室内空间进行深度的设计,还原室内空寂真正生活化、人性化的一面,并以更加细致、专业、规范的服务流程为客户提供专业的整体装饰设计服务。
东灿装饰拥有完善的项目控制协作平台和丰富的产品资源。在追求设计品质与产品质量的同时注重过程管理,使设计理念及成本控制能贯彻到整个项目中去。
我们的服务
标准 高效 优质
设计专业化
施工规范化
服务人性化
主营业务
建筑 装饰 设计 咨询
施工 园林 软配
设计范围
星级酒店 私人会所 餐饮娱乐 绿色办公
别墅豪宅 精装样板房






