最近很多客户咨询锦天盛世的设计装修。
今日分享,锦天盛世143㎡最新设计案例,中古氛围感拉满,耐看10年不腻哦!


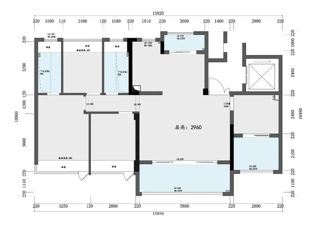
功能介绍(原始图&平面图)


我们用暖白+原木+浅灰的中古质感,让每一处细节都贴合南昌的气候与生活节奏,不追网红潮流,只做耐看又实用的温柔居所。

推开门,木格栅挂墙先接住通勤的外套与随手的包包,悬浮换鞋凳承托疲惫的双脚,右侧通顶鞋柜藏起全家杂物,开放格暖光与发光门牌号,是专属于你的归家仪式感。


客厅里,悬浮电视柜+地台让视觉瞬间开阔,人字拼木纹砖踩着暖意,大落地窗的白纱滤过南昌的阳光,在黑白格地毯上投下斑驳光影。黑色皮质沙发软而有支撑,搭配浅色单人椅,无主灯+线性灯的柔光,让夜晚的家没有刺眼冷光,只剩松弛。



餐厅的设计藏着烟火气:岩板餐桌配云朵吊灯,吃饭时暖光裹着饭菜香;U型厨房上下柜+抽屉收纳整洁,高柜嵌入冰箱与蒸烤箱,玻璃移门隔住油烟,却不打断家人互动的温情。



主卧以木饰面床头+双圆壁灯营造静谧感,藤编元素点缀通顶衣柜,双层窗帘灵活调节采光,把南昌的燥热与喧嚣都挡在窗外。两个儿童房各有温度:航天主题藏着男孩的探索欲,萌宠风格陪着女孩长大,都预留了学习区与储物空间,适配成长的每一步。



双卫生间均做干湿分离,壁龛+镜柜收纳洗漱用品,智能马桶与电热毛巾架让梅雨季也干爽舒适,浅米色瓷砖耐脏易清洁,贴合日常需求。
其他美图分享




如果你也在南昌,偏爱这种温润耐看的中古风,欢迎私信预约免费户型解析&设计方案,把你的家,变成藏在城市里的温柔小窝。#南昌锦天盛世#中古风#奶油风
